Pronájem OV 2+kk Provazníkova po rekonstrukci
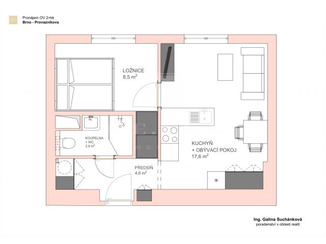
Dovolujeme si Vám nabídnout pronájem bytu po kompletní rekonstrukci v cihlovém domě v Brně Černých Polích. Byt situovaný ve 2.patře bez výtahu je orientovaný na jih do klidného vnitrobloku s možností parkování. Byt je vybaven klimatizační jednotkou, novou kuchyňskou linkou s vestavnými spotřebiči ( indukční deska, trouba, myčka, digestoř, samostatně stojící lednice s mrazákem) a nabízí dostatek úložných prostor díky vestavným skříním, které jsou v předsíni, pokoji i v ložnici. K dispozici je velký sklep, přístupný přímo zadním vchodem ze dvora. Okolí je dobře vybavené, výborné spojení do města i na Campus, park Lužánky pouze 3 zastávky trolejbusu. Pronajímatel si vyhrazuje právo vybrat nájemce na základě jím zvolených kritérií. Jistota se skládá ve výši dvou nájmů. Provize RK ve výši 1 nájmu + DPH. Prohlídku a bližší informace Vám ráda zajistí Galina Suchánková.
Makléř této zakázky
Ing. Galina Suchánková
realitní makléř
+420 602 568 693
galina@reingmorava.cz
Parmetry nemovitosti
16 800Kč za měs.
+ provize RK, další pozn.:+ záloha na energie a služby 3.200,- Kč
Dispozice
2 + kk
Podlaží
3
Počet podlaží v domě
4
Celková podlahová plocha [m²]
33
Užitná plocha [m²]
33
Druh objektu
cihlový
Stav objektu
velmi dobrý
Vlastnictví
osobní
Plocha balkónu [m²]
0
Plocha teras [m²]
0
Lodžie [m²]
0
Užitná plocha [m²]
33
Podle vyhlášky
78/2013 Sb.
Makléř této zakázky
Ing. Galina Suchánková
realitní makléř
+420 602 568 693
galina@reingmorava.cz





















